Stephen Starr and the team behind his new project showed proposed plans for the new restaurant and market to the Georgetown Advisory Neighborhood Commission on Tuesday.

Screenshot / Richard Stokes

Stephen Starr, accomplished restauranteur and owner of the D.C. institution Le Diplomate, will open an Italian restaurant and market in the shuttered Dean & DeLuca space on Georgetown’s M Street NW.

Washingtonian first reported the news.  

Starr presented his proposal during a virtual Advisory Neighborhood Commission meeting on Tuesday night, saying that imagining the new concept as “just an Italian restaurant” wouldn’t be doing it justice; instead he described it as “an event,” a “festival of food” with prices that will justify several visits per week.

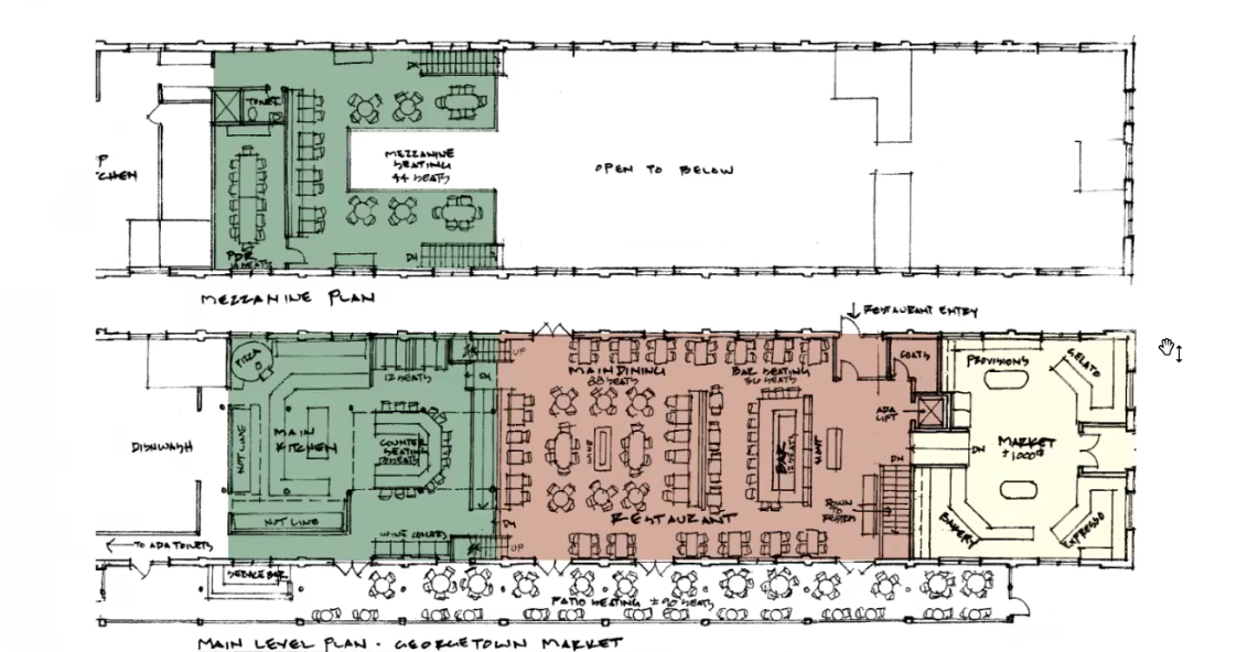
“We wanted to have a feeling of community, a place you can go three, four or five times a week and not be bored, or not feel like you’ve had too much of it,” Starr said. 

Richard Stokes, the project’s architect who previously worked with Starr on his two other D.C. spots — Le Diplomate and St. Anselm — said the team will maintain the bones of the centuries-old marketplace, referring to the space as one of the “anchors” of M Street NW. The building, built in the 1800s, has been vacant (aside from the occasional pop-up) since the luxury grocery chain Dean & DeLuca closed in 2019.

The restaurant will be located in the center of the building, while the 1,000-square-foot market hall — complete with gelato, espresso, and a bakery — will stay at the front.

“We’re looking directly for inspiration to Italy to Rome,” Stokes said.

Starr hedged on making a definitive grand announcement about the new restaurant’s star chef after finding out that the virtual meeting was being publicly recorded, but hinted that Nancy Silverton, acclaimed California chef and baker, is in talks to lead the restaurant, and even visited the space last week.

I want to give you an idea that we’re definitely gonna have a very well known chef at the helm here,” Starr said of his negotiations with Silverton. 

The commissioners on the call seemed excited about Starr’s proposal — an expected reaction after a year that wreaked havoc on Georgetown’s retail scene. Unlike other commercial strips in the city, Georgetown’s M Street relies heavily on tourist traffic, which plummeted during the pandemic.

“I hear that retail is a little sleepy right now,” Starr said. “Georgetown I think needs a little bit of a boost, and I think this could be a good kickstarter.”

He added that President Joe Biden’s and Vice President Kamala Harris’ patronage of Le Diplomate over the weekend (the latest additions to the french restaurant’s star-studded list of guests), bodes well for the success of another Starr-managed location in the city.